Bauhistorische Dokumentation
Die bauhistorische Dokumentation bildet eine unverzichtbare Grundlage für jede Maßnahme an einem Baudenkmal oder im sonstigen historischen Bestand. Sie ermöglicht nicht nur ein tieferes Verständnis der Baugeschichte und Nutzungsspuren eines Gebäudes, sondern schafft auch die fachliche Basis für denkmalpflegerische Entscheidungen. Gerade im Hinblick auf Planungssicherheit, Genehmigungen und Fördermittel ist eine fundierte Dokumentation der Bau- und Nutzungsgeschichte entscheidend.
Leistungsspektrum
- Verformungsgerechtes Aufmaß:
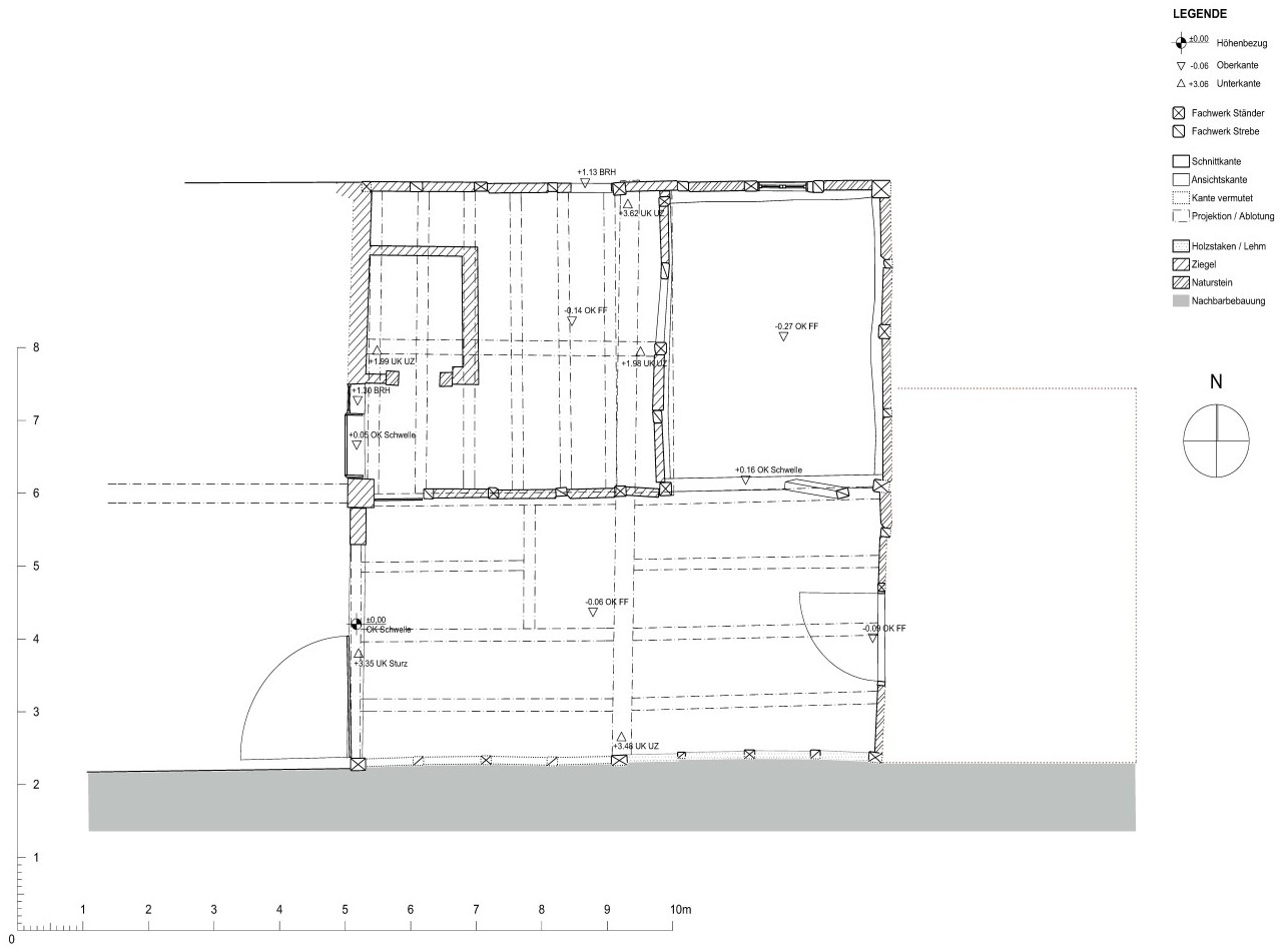
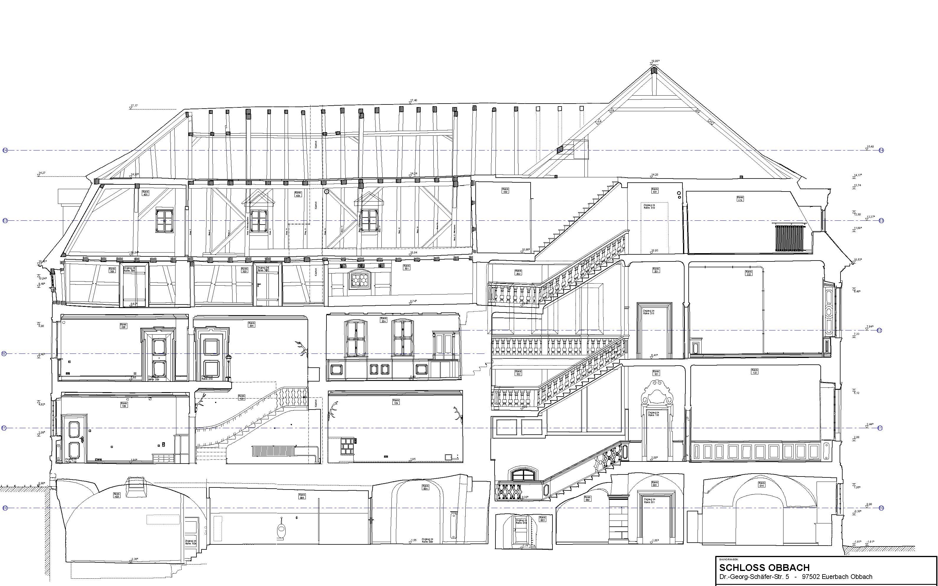
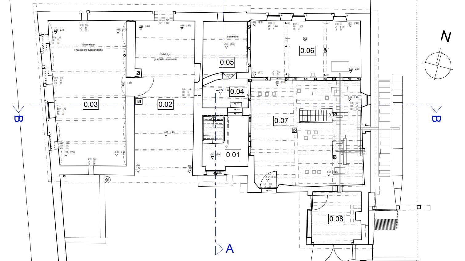
Präzise Erfassung der Gebäudestruktur (Tachymetrie & Photogrammetrie) - Bauaufnahme und Raumbuch:
Systematische Bestands- und Raumerfassung inkl. bauhistorischer Untersuchungen - Erstellung von Baualtersplänen:
Analyse und zeichnerische Darstellung der Bauphasen - Fotodokumentation:
Übersichtliche, systematische Bilddokumentation von Bauzuständen und Details - Schadenskartierung:
Lokalisierung und Bewertung von Schäden als Plan- und Textbeilage - Baubeschreibung und historische Einordnung:
Textliche Dokumentation der Baugeschichte, Materialien, Konstruktionen
×

